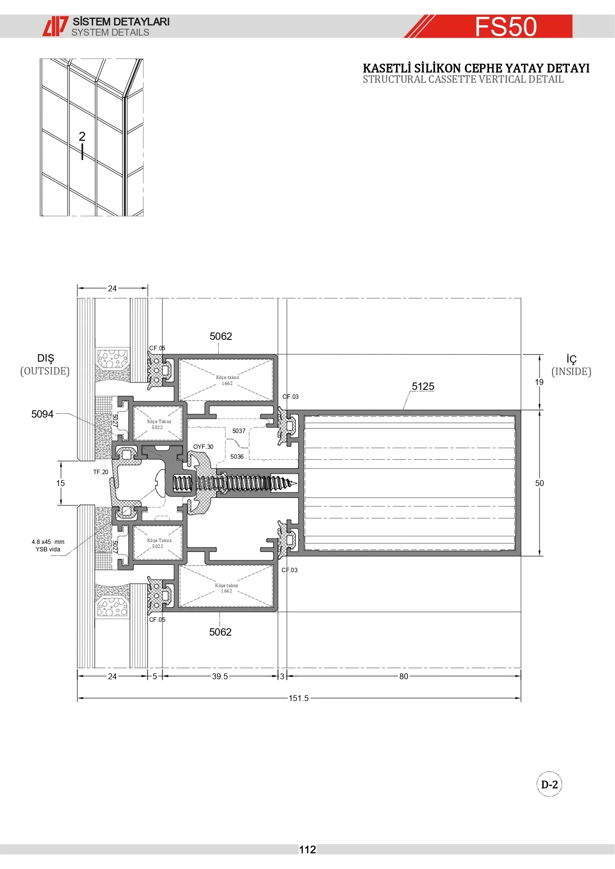
Strüktürel silikon giydirme cephe, özellikle modern binalarda kullanılan bir cephe kaplama sistemidir. Bu sistem, camların strüktürel silikonla alüminyum kaset profillerine yapıştırıldığı ve ardından alüminyum taşıyıcılara vidalanması ile oluşur. Camlar arasında sadece silikon olduğundan cephe yüzeyi pürüzsüz, camların arkasındaki kaset profillerin çizgileri görünürdür.
Strüktürel silikon giydirme cephe sistemleri, modern mimari tasarımlarda yaygın olarak kullanılan, estetik ve fonksiyonel avantajlara sahip olan özel bir cephe kaplama sistemidir. Bu sistemlerin öne çıkan özellikleri şunlardır.
- Görünür Çizgiler: Strüktürel silikonla kaset profillerine monte edilen camların arkasında dışarıdan bakıldığında siyah bir çerçeve görüntüsü vardır. Fakat camlar arasında veya üzerinde metal bir çerçeve olmadığı için, kesintisiz ve temiz bir estetik sağlar. Bu, binalara modern ve şık bir görünüm kazandırır.
- Yüksek Yapışma Gücü: Kullanılan strüktürel silikon, camları metal kaset profillere güçlü bir şekilde yapıştırır. Bu, yüksek rüzgar yükleri, depremler ve diğer dış etkenlere karşı cephenin stabilitesini garantiler.
- Enerji Verimliliği: Lamine ya da düşük-e cam gibi enerji verimli cam seçenekleriyle birlikte kullanıldığında, strüktürel silikon giydirme cepheler ısı yalıtımı ve güneş kontrolü sayesinde enerji tasarrufu sağlar.
- Akustik İzolasyon: Özellikle yoğun trafikli bölgelerde, ses yalıtımı sağlayan camlarla birleştirildiğinde, bu cepheler iyi bir akustik izolasyon sunabilir.
- Korozyon Direnci: Alüminyum kaset profiller ve taşıyıcı sistemler, korozyona karşı yüksek dirençlidir. Bu, uzun süreli dayanıklılık sağlar.
- UV Direnci: Strüktürel silikonlar, UV ışınlarına karşı dayanıklıdır, bu sayede zamanla sararma ya da bozulma yapmaz.
- Esnek Tasarım: Bu sistem, mimar ve tasarımcılara geniş bir tasarım özgürlüğü sunar. Farklı cam boyutları, şekilleri ve renkleriyle kişiselleştirilmiş tasarımlar oluşturmak mümkündür.
- Güvenlik: Lamine cam veya temperli cam kullanıldığında, strüktürel silikon giydirme cepheler yüksek güvenlik standartlarına sahip olabilir.
- Kolay Bakım: Strüktürel silikon giydirme cephelerin bakımı görece daha kolaydır. Metal çerçevenin olmaması, temizlik sırasında engel oluşturan unsurları ortadan kaldırır.
- Hava ve Su Sızdırmazlık: Bu sistemler, doğru montaj ve mühendislikle birlikte hava ve su sızdırmazlığında yüksek performans gösterir.
Bu özellikler, strüktürel silikon giydirme cephe sistemlerinin, hem estetik hem de fonksiyonel açıdan birçok avantaja sahip olduğunu göstermektedir. Ancak, bu tür bir sistemin montajı ve bakımı uzmanlık gerektirir ve düzenli kontrollerin yapılması önemlidir. Ayrıca, klasik kapaklı giydirme cephelerle karşılaştırıldığında montajı daha kolaydır fakat özel yapısal silikon kullanımı sebebiyle maliyeti daha yüksektir. Kasetsiz silikon cephe sistemlerine göre de maliyeti yine daha yüksek, montajı daha kolaydır.
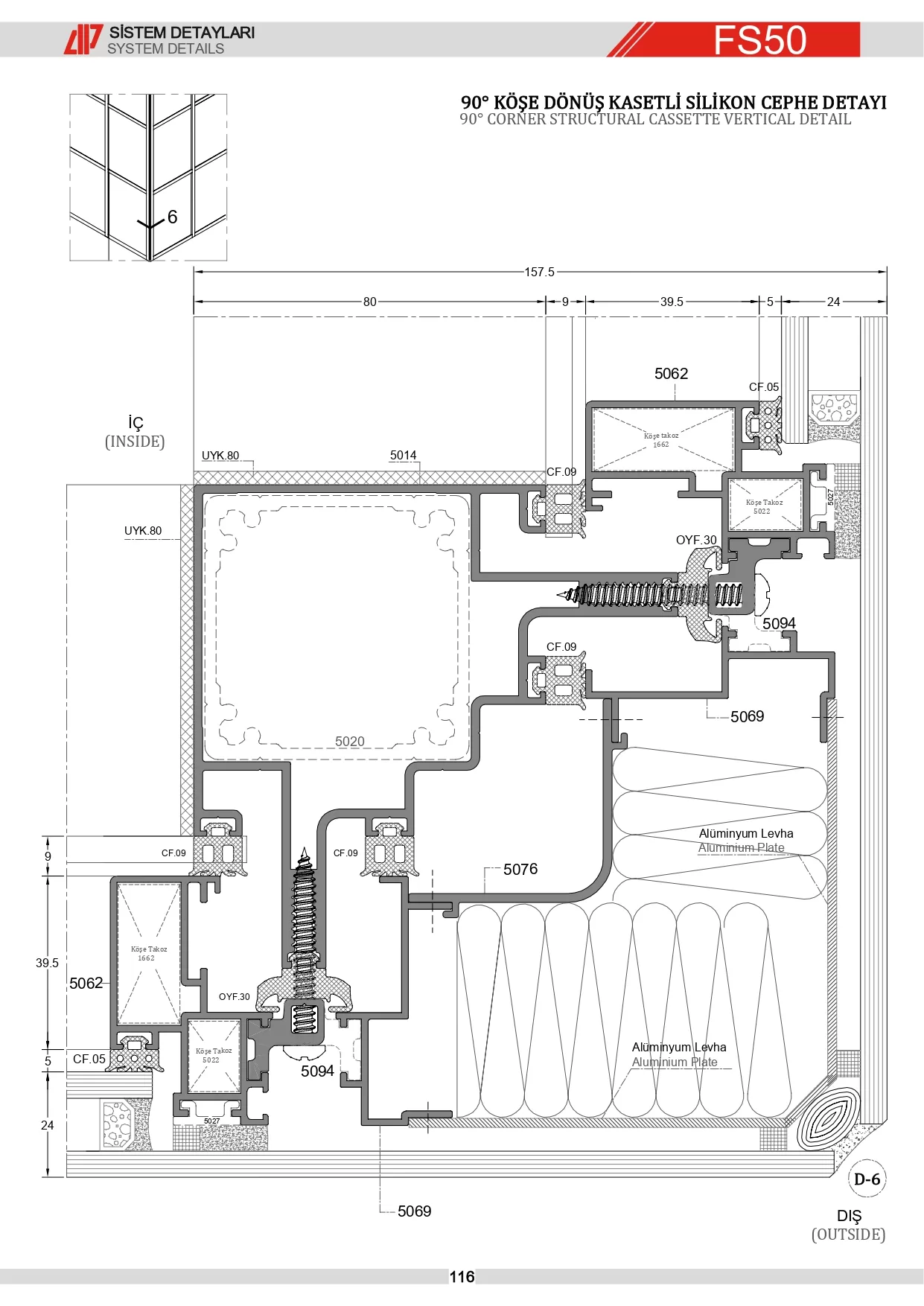
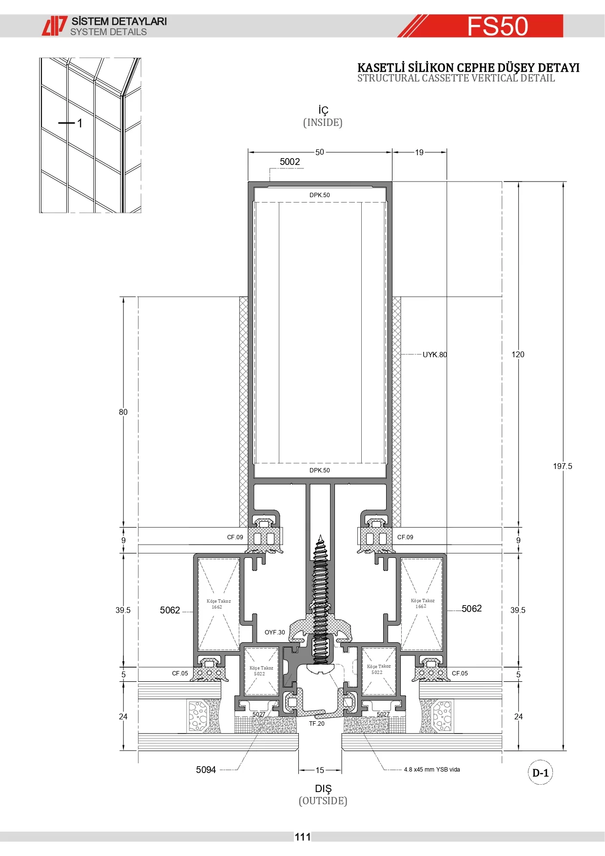
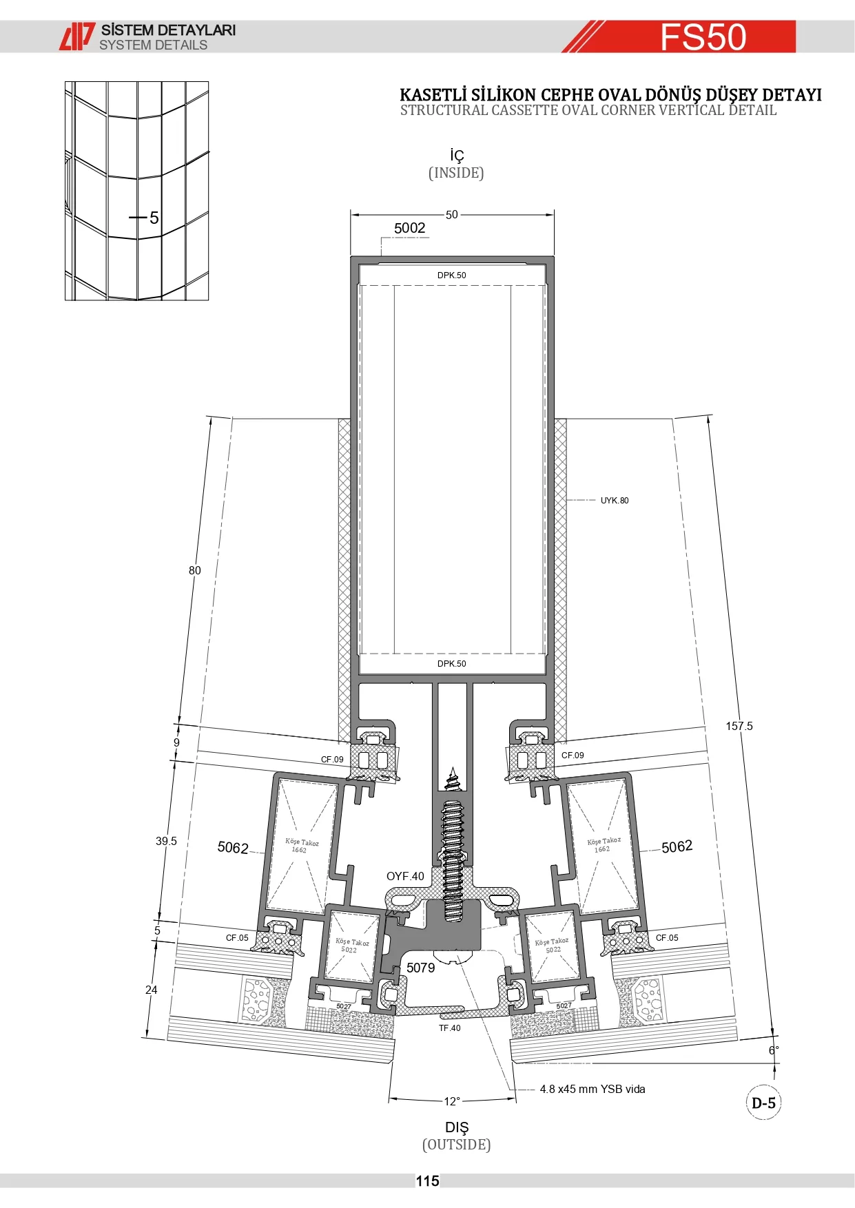
Kasetli Silikon Cephe Elemanları
Strüktürel silikon giydirme cephe sistemi, birçok elemandan oluşan karmaşık bir yapıya sahiptir. Bu elemanlar, sistemin işlevselliği, estetiği ve performansı için kritiktir. İşte strüktürel silikon cephe sisteminin başlıca elemanları.
Strüktürel Silikon Giydirme Cephe Elemanları
Silikon cephe uygulaması, uzmanlık ve tecrübe gerektiren bir işlemdir. Montaj sırasında yapılan her adımın doğru ve dikkatli bir şekilde tamamlanması, cephenin uzun ömürlü, dayanıklı ve işlevsel olmasını sağlar. Bu nedenle, bu tür bir montajın deneyimli ve eğitimli bir ekip tarafından yapılması önerilir. Silikon cephe montajı konusunda teknik destek için bizimle iletişime geçebilirsiniz.

Bu elemanlar, strüktürel silikon cephe sisteminin binanın ana taşıyıcı yapısına güvenli bir şekilde monte edilmesini sağlar. Çelik dübeller ve ankraj bağlantıları, taşıyıcı sistemlerin binaya sağlam ve güvenli bir şekilde bağlanmasını garantiler.

Alüminyum veya diğer metallerden yapılan bu profiller, camları taşıyan ve destekleyen ana iskelet sistemidir. Genellikle alüminyum kullanılır, çünkü hafif, dayanıklı ve korozyona dirençli bir malzemedir.

Bu elemanlar, strüktürel silikon cephe sistemlerinin hava ve su geçirmez olmasını sağlar. Ayrıca, termal genleşme ve daralmalar sırasında sistem elemanları arasında bir tampon görevi görerek yapısal bütünlüğü korurlar.

Bu profiller, camların arkasına monte edilir ve camları taşıyıcı iskelete bağlar. Camlar, strüktürel silikon yapıştırıcı ile bu profillere yapıştırılır.

Çeşitli tiplerde camlar (temperli, lamine, düşük-e vb.) strüktürel silikon cephede kullanılabilir. Seçilen cam tipi, cephenin enerji verimliliği, güneş kontrolü, akustik izolasyon ve güvenlik özelliklerini belirler.

Bu özel yapıştırıcı, camların kaset profillere güçlü ve dayanıklı bir şekilde yapışmasını sağlar. Strüktürel silikon, UV ışınlarına, hava koşullarına ve yaşlanmaya karşı yüksek dirence sahiptir.

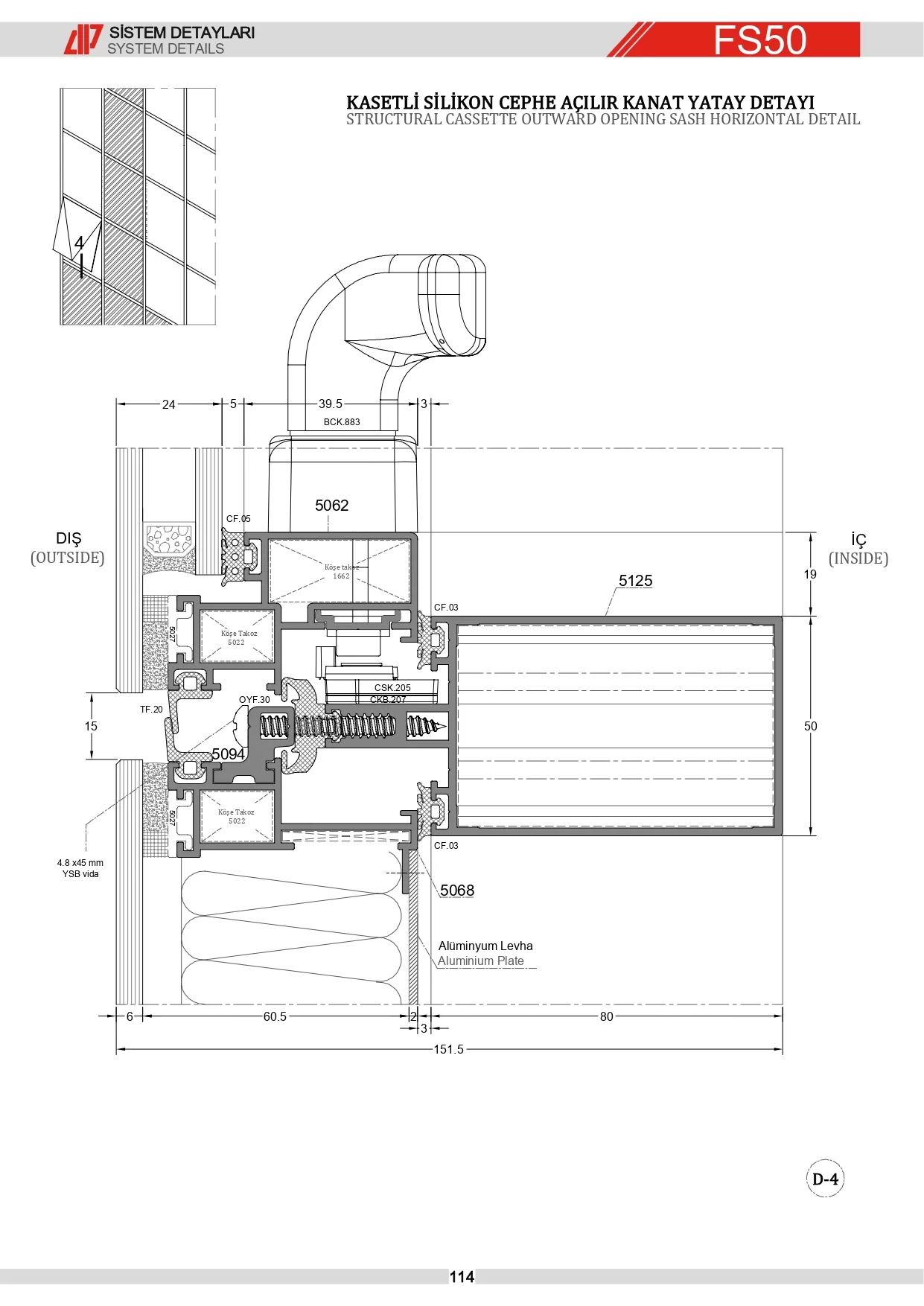
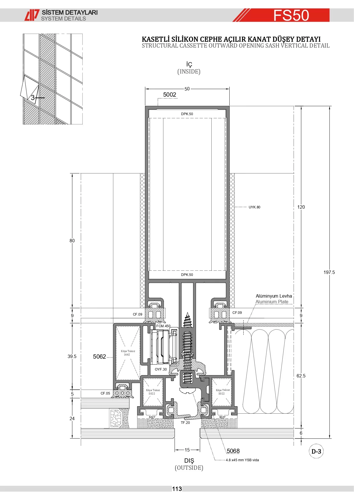
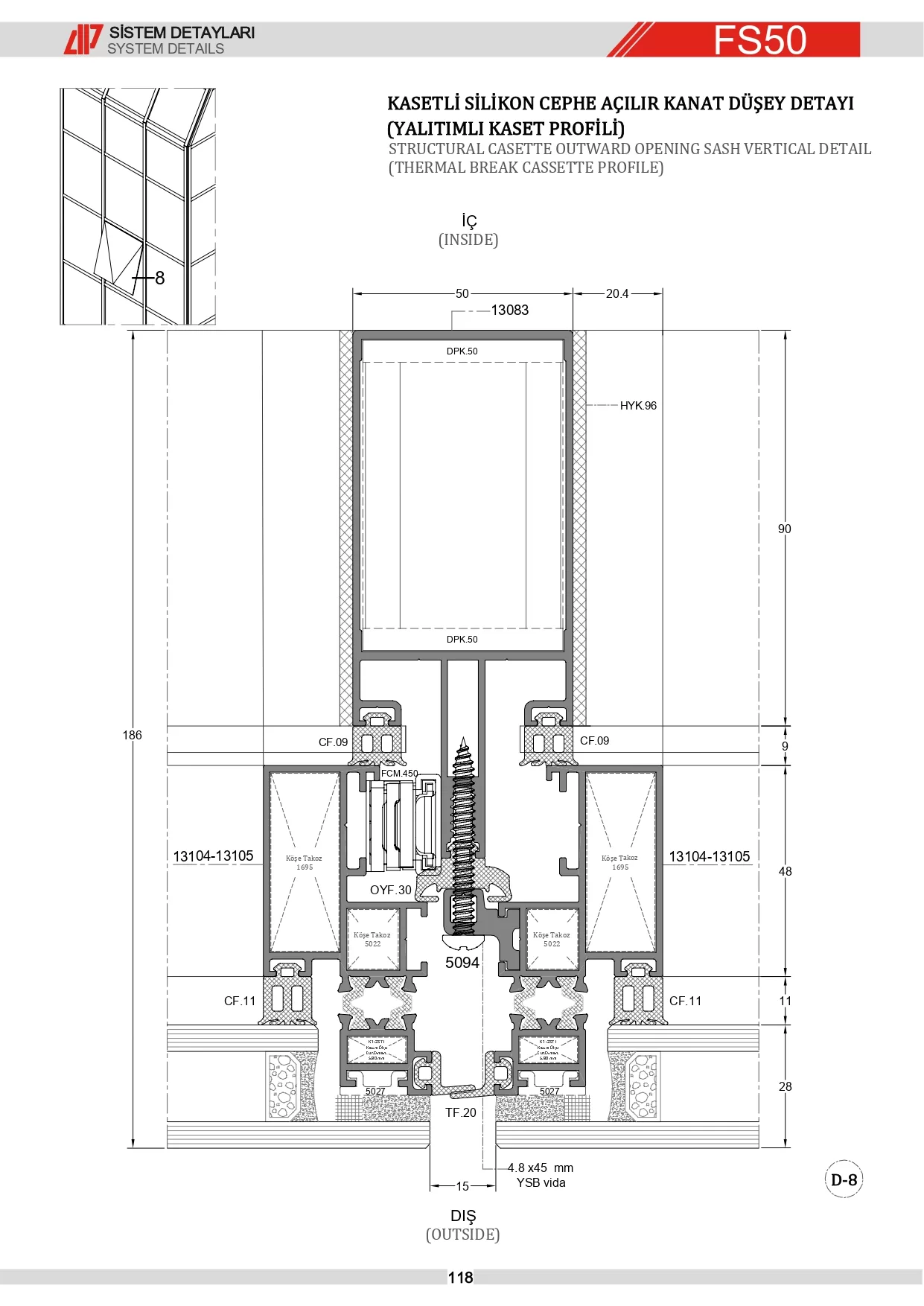
Bazı strüktürel silikon cepheler, havalandırma veya acil durum çıkışı gibi işlevsel ihtiyaçlar için açılır kanat özelliğine sahip olabilir. Bu kanatlar, estetik bütünlüğü bozmadan cephede belirli bir bölgenin açılmasını sağlar.
Bu elemanların tümü bir araya geldiğinde, hem estetik hem de fonksiyonel olarak üstün bir cephe sistemi oluşturulmuş olur.
Strüktürel Silikon Giydirme Cephe Teknik Özellikleri
- Profil Genişliği: 50mm
- Profil Et Kalınlığı: 1,4 – 2,5 mm
- Düşey Taşıyıcı Profil Derinliği: 50 – 180 mm
- Yatay Taşıyıcı Profil Derinliği: 30 – 126 mm
- Minimum Cam Kalınlığı: 4 mm
- Maksimum Cam Kalınlığı: 45 mm
- Minimum Kanat Boyutu: 700 x 1200 mm
- Maksimum Kanat Boyutu: 1500 x 2000 mm
- Maksimum Kanat Ağırlığı: 155 kg
- EN 12152 Hava Geçirgenliği: A4 – 600 Pa
- EN 12154 Su Sızdırmazlığı: RE 1200 Pa
- EN 13830 Rüzgar Yüküne Dayanım: 1200 Pa
- Minimum Termal Isı Yalıtımı: Uf: 2,64 – 3,88 W/(m^2.K)
Strüktürel Silikon Giydirme Cephe Cam Özellikleri Nelerdir?
Strüktürel silikon giydirme cephe sistemlerinde kullanılan camlar, genellikle yüksek performanslı ve özel işlevlere sahip cam tipleridir. Bu camların özellikleri, cephelerin enerji verimliliği, estetik, güvenlik ve diğer kritik faktörlerle ilgili gereksinimlerini karşılar. İşte silikon cephe camlarının temel özellikleri.
Strüktürel Silikon Giydirme Cephe Cam Renkleri Nasıldır?
Silikon cephe camları, genellikle estetik ve fonksiyonellik gereksinimlerini karşılamak üzere çeşitli renklerde ve kaplamalarda üretilir. Bu kaplamalar ve renkler, enerji verimliliğini, güneş kontrolünü ve estetiği etkileyebilir. İşte silikon cephe camları için yaygın renk ve kaplama seçenekleri.
Strüktürel Silikon Giydirme Cephe Cam Renkleri

Düşük-e (Low-e) Kaplamalar: Bu kaplamalar, camın ısı ve ışık iletim özelliklerini optimize eder. Ultraviyole ve kızılötesi ışınlarına karşı bir bariyer oluşturarak iç mekanın aşırı ısınmasını önler ve ısı kaybını azaltır.

Güneş Kontrol Kaplamaları: Bu kaplamalar, güneş ışığından gelen aşırı ısıyı azaltmaya yardımcı olur. Aynı zamanda UV ışınlarına karşı koruma sağlar.

Tonlu Camlar: Farklı renklerde üretilen camlar, estetik açıdan çeşitlilik sağlar ve aynı zamanda güneş ışığının bir kısmını emerek iç mekanın aşırı ısınmasını engeller. Yaygın tonlar arasında bronz, füme, yeşil ve mavi bulunur.

Yansıtıcı Kaplamalar (Reflekte Cam): Yansıtıcı cam kaplamaları, dışarıdan gelen ışığın bir kısmını yansıtarak iç mekanda sıcaklık kontrolü sağlar. Aynı zamanda estetik bir parlaklık ve yansıma efekti yaratır.

Mat Cam: Yüzeyi pürüzlendirilmiş veya asidik işlem görmüş cam türleridir. Görüşü kısıtlar, gizlilik sağlar ve estetik bir dokunuş ekler.

Dijital Baskı Camı: Dijital baskı teknolojisi ile camın üzerine grafikler, desenler veya görseller basılabilir. Bu, özelleştirilmiş estetik seçenekler sunar.
Strüktürel Silikon Giydirme Cephe Nasıl Yapılır?
Bu cephelerin üretimi, yalnızca estetik değil, aynı zamanda mühendislik mükemmeliyetini de içerir. Alüminyum griyaj ve kaset profillerin kesiminden camın bu profillerle birleştirilmesine kadar olan süreç, titiz bir planlama, hassas uygulama ve sürekli kalite kontrolünü gerektirir. İşte strüktürel silikon cephe imalatındaki ana adımlar.
Strüktürel Silikon Giydirme Cephe İmalatı

- Başlangıçta, projenin ihtiyaçlarına göre uygun kalınlıkta ve özellikte alüminyum profiller ve cam seçilir.


- Cam, belirlenen boyutlarda kesilir.
- Kenarları zımparalanır ve temizlenir. Bu, silikon yapıştırıcının daha iyi tutunmasını sağlar.
- Gerekliyse, cam yüzeyine kaplamalar veya diğer işlemler uygulanır.


- Tüm imalat süreci boyunca, kesim doğruluğu, silikon uygulamasının kalitesi ve genel birleştirme mukavemeti gibi kritik parametreler düzenli olarak kontrol edilir.
Bu süreçler, yüksek mukavemetli, dayanıklı ve estetik bir strüktürel silikon cephe sistemi oluşturmak için kritik öneme sahiptir. Strüktürel silikon cephe imalatında deneyim ve uzmanlık, camın ve alüminyum profillerin doğru şekilde birleştirilmesi için esastır. Silikon cephe imalatı konusunda destek almak için bizimle iletişime geçin.
Strüktürel Silikon Giydirme Cephe Montajı

- İnşaat sahasında güvenlik önlemleri alınır. Çalışma alanı temizlenir ve montaj için gerekli ekipmanlar hazırlanır.
- Yapının ana taşıyıcı elemanlarına, cepheye bağlanacak ankraj ve bağlantı elemanları monte edilir.


- İmal edilen ve kaset profilleriyle birleştirilmiş cam paneller, alüminyum griyaj sistemine monte edilmeye hazır hale getirilir.
- Bu cam paneller, griyaj sistemine uygun bağlantı elemanlarıyla (genellikle vidalarla) monte edilir. Bu sırada panelin her iki yüzeyine de strüktürel silikon uygulanarak hem yapıştırma hem de su yalıtımı sağlanır.
- Silikon, camın kaset profiline tam ve eşit bir şekilde yapışmasını sağlamak için dikkatlice uygulanır.


- Eğer tasarımda belirtilen yerlerde açılır kanatlar veya havalandırma elemanları varsa, bu elemanlar da griyaj sistemine monte edilir.
- Montajın tamamlanmasının ardından, tüm cephede su sızdırmazlık, hava geçirgenliği ve yapısal dayanıklılık gibi testler yapılır.
- Herhangi bir eksiklik veya hata tespit edilirse gerekli düzeltmeler yapılır.
Strüktürel Silikon Giydirme Cephe Maliyetleri Nasıldır?
Silikon cephe maliyeti, birçok farklı faktöre bağlı olarak değişkenlik gösterebilir. Aşağıda, maliyeti etkileyen temel faktörler ve bu konudaki genel bilgilere dair bir rehber sunulmaktadır.
Strüktürel Silikon Giydirme Cephe Maliyeti
- Malzeme Maliyeti:
- Cam: Kullanılan camın türü (temperli, lamine, düşük-e, reflektif vb.), kalınlığı ve kaplamaları camın metrekare fiyatını belirleyecektir.
- Alüminyum Profiller: Profilin kalitesi, kesiti ve yüzey işlemi (anodize, boyama vb.) maliyeti etkiler.
- Silikon ve Diğer Malzemeler: Strüktürel silikonun kalitesi ve türü, fitil, conta ve diğer yardımcı malzemeler maliyeti oluşturacaktır. Özellikle klasik kapaklı giydirme cephelerle karşılaştırıldığında maliyeti değiştiren önemli bir kalemdir.
- İmalat ve İşçilik Maliyeti:
Montajın ve imalatın karmaşıklığına, projenin büyüklüğüne ve gereksinimlerine bağlı olarak işçilik maliyetleri değişiklik gösterecektir. - Tasarım ve Mühendislik Maliyeti:
Özel tasarım veya mühendislik çözümleri gerektiren projelerde, bu hizmetlerin maliyeti toplam maliyete eklenecektir. - Taşıma ve Lojistik:
Projenin bulunduğu konuma göre malzemelerin taşıma ve lojistik maliyetleri de hesaba katılmalıdır. - Ek Maliyetler:
Belirli projelerde, özel testler, sertifikalar veya diğer ek hizmetler gerekebilir, bu da toplam maliyeti artırabilir. - Bölgesel Faktörler:
Yerel ekonomik koşullar, rekabet düzeyi, arz-talep dengesi ve diğer bölgesel faktörler fiyatlandırmayı etkileyebilir.
Maliyet tahmini yaparken, bir projenin spesifik ihtiyaçlarına ve gereksinimlerine göre detaylı bir bütçe hazırlamak esastır. Yerel tedarikçiler, üreticiler veya uzmanlarla iletişime geçmek, en doğru ve güncel fiyat bilgisini almanın en iyi yoludur. Ancak, her durumda, kaliteden ödün vermeden maliyetleri minimize etmek için dikkatli bir planlama ve araştırma yapılmalıdır.
Strüktürel Silikon Giydirme Cephe Fiyatları
Strüktürel silikon cephe fiyatlandırması, genellikle metrekare başına verilir ve birçok farklı faktöre bağlı olarak değişkenlik gösterebilir. Faktörler arasında kullanılan malzemelerin kalitesi, projenin karmaşıklığı, tasarım özellikleri, bölgesel maliyet farkları ve diğer birçok parametre bulunmaktadır.
Ortalama olarak, strüktürel silikon cephe maliyeti metrekare başına 150-250 dolar arasında değişebilir. Ancak bu, genel bir aralık olup, belirli bir projenin özelliklerine ve ihtiyaçlarına göre fiyatlar bu aralığın dışında da olabilir.
Strüktürel Silikon Giydirme Cephe Firmaları
Silikon cephe uygulaması, modern mimari yapıların dış cephelerinde sıkça tercih edilen bir yöntemdir ve bu alanda uzmanlaşmış birçok firma bulunmaktadır. Silikon cephe yapan firmalar genellikle mimari cam uygulamaları, alüminyum profil üretimi ve montajı konularında uzmanlaşmışlardır.
Üçgen Alüminyum, silikon cephe konusunda öne çıkan firmalardan biridir. Firmanın genel özellikleri şunlardır:
Silikon cephe yapan diğer firmalar da sektörde farklı uzmanlık alanları, kalite standartları ve hizmet ağları ile faaliyet göstermektedir. Ancak, Üçgen Alüminyum gibi sektörde bilinen ve tercih edilen firmalar, deneyimleri ve sundukları hizmet kalitesi ile öne çıkarlar. Bir projede silikon cephe uygulaması yapmayı planlıyorsanız, firmanın geçmiş projelerini incelemek, referanslarını kontrol etmek ve detaylı bir teklif almak için iletişime geçmek önemlidir.





