Kapaklı giydirme cephe, özellikle modern bina tasarımlarında tercih edilen yenilikçi bir dış cephe kaplama sistemidir. Bu sistem, cam panellerin alüminyum taşıyıcı profillere baskı profilleriyle vidalanarak monte edildiği ve dışarıdan bakıldığında alüminyum çerçevelerin görüldüğü bir yapıya sahiptir. Kapaklı cam giydirme cephe, estetik ve işlevselliği bir araya getirerek binalara şık ve modern bir görünüm kazandırır.
Alüminyum kapaklı giydirme cephe sistemlerinde, cam panellerin kenarları, alüminyum kapak profilleriyle çevrelenir. Bu kapaklar, hem estetik bir çerçeve görevi görür hem de cam panellerin taşıyıcı sisteme güvenli bir şekilde bağlanmasına yardımcı olan baskı profillerini kapatır.
Kapaklı giydirme cephe sistemleri, modern mimaride sıklıkla tercih edilen bir dış cephe kaplama çözümüdür. Estetik görünümün yanı sıra, bir dizi işlevsel avantaj da sunar. İşte kapaklı giydirme cephe sistemlerinin öne çıkan özellikleri.
- Estetik Çekicilik: Kapaklı cam giydirme cephe, binalara düzgün ve modern bir görünüm kazandırır. Alüminyum çerçeveler, cam panelleri estetik bir şekilde çevreleyerek görsel bir bütünlük oluşturur.
- Yüksek Işık Geçirgenliği: Bu sistemler, yapı içine doğal ışığın bol miktarda girmesini sağlar, böylece iç mekanlar daha aydınlık ve davetkar hale gelir.
- Enerji Verimliliği: Kapaklı cam cephe sistemleri, çift camlı veya düşük emisiviteli (Low-E) cam gibi enerji verimli cam seçenekleri ile entegre edilebilir. Bu, binaların ısıtma ve soğutma maliyetlerinde tasarruf sağlar.
- Dayanıklılık: Alüminyum kapaklı giydirme cephe sistemleri, alüminyumun doğal dayanıklılığı sayesinde uzun ömürlüdür. Korozyona dirençli malzemeler, çevresel etkilere karşı üstün koruma sağlar.
- Hava ve Su Sızdırmazlığı: Kaliteli fitil ve contalar kullanılarak yüksek hava ve su sızdırmazlık performansı elde edilir. Bu, cephe sisteminin aşırı hava koşullarına karşı korunmasına yardımcı olur.
- Kolay Bakım ve Temizlik: Kapaklı giydirme cephe sistemleri, düzgün yüzeyleri sayesinde kolayca temizlenebilir. Alüminyum çerçeveler, özel bakım gerektirmeyen dayanıklı malzemelerden yapılmıştır.
- Güvenlik ve Güvenlik: Lamine veya temperli cam seçenekleri, artırılmış güvenlik ve güvenlik sağlar. Kırılsa bile, cam parçaları zarar verme riskini azaltacak şekilde tasarlanmıştır.
- Esnek Tasarım Olanakları: Kapaklı cam cephe kaplama, farklı renklerde ve yüzey işlemlerinde alüminyum çerçevelerle özelleştirilebilir. Bu, projenin estetik gereksinimlerine uygun esnek tasarım seçenekleri sunar.
- Açılır Kanat Entegrasyonu: Havalandırma veya acil çıkış ihtiyaçlarına yönelik olarak, kapaklı giydirme cephe sistemlerine açılır kanatlar entegre edilebilir.
Bu özellikler, kapaklı giydirme cephe sistemlerini, modern yapılar için hem estetik hem de işlevsel bir dış cephe çözümü olarak ideal kılar.
Kapaklı giydirme cephe sistemleri, modern mimari tasarımlarda esneklik ve estetik çekiciliği bir araya getiren önemli bir çözüm sunar. Kapak profillerinin kullanımı, tasarımcılara ve mimarlara çeşitli estetik seçenekler sunarak, yapıların dış görünüşünü kişiselleştirme imkanı verir. İşte kapaklı giydirme cephe modelleri ve bu modellerin sağladığı tasarım esnekliği.

Standart Kapaklı Giydirme Cephe: Alüminyum kapak profilleri dikeyde ve yatayda bulunur ve cepheye ızgaralı bir görüntü verir. Bu standart uygulamada cephe ciddi, modern bir görüntü kazanırken aynı zamanda sağlamlık açısından da güven verir.

Yarı Kapaklı Giydirme Cephe: Bu modelde, kapaklar yalnızca dikey veya yatay olarak uygulanır, böylece cam yüzeyler arasında belirli bir eksende kesintisiz bir görünüm elde edilir. Yarı kapaklı giydirme cephe, modern ve minimal bir estetik sunarken, doğal ışığın maksimum düzeyde içeri alınmasına olanak tanır.

Badem Kapaklı Cephe: Kapak profilleri badem şeklinde tasarlandığında, cepheye özgün ve dinamik bir görünüm kazandırılır. Badem kapaklı cephe, yapıya estetik bir karakter katmanın yanı sıra, güneş kontrolü ve gölgeleme gibi işlevsel avantajlar da sunabilir.

Özel Şekil Kapaklı Cephe: H şeklinde, çapraz veya diğer özel geometrik desenlerde uygulanan kapaklar, binalara benzersiz bir kimlik kazandırır. Özel şekil kapaklı giydirme cephe, yaratıcı tasarım fikirlerini hayata geçirme konusunda geniş bir alan sunar. Bu tür kapaklar, cepheye derinlik ve görsel ilgi eklerken, aynı zamanda gölgeleme ve estetik bütünlüğü artırabilir.
Kapak profillerinin kullanımı sayesinde, kapaklı cam giydirme cephe sistemleri, projenin mimari diline ve estetik tercihlerine uygun olarak çeşitlendirilebilir. Bu esneklik, binaların çevresiyle uyumlu ve görsel olarak çekici dış cepheler oluşturulmasını sağlar. Her model, belirli bir estetik ifade veya işlevsel gereksinimi karşılamak üzere tasarlanabilir, böylece yapıların kimliğini güçlendirir ve mimari tasarımın bütünlüğüne katkıda bulunur.
Kapaklı Cephe Elemanları Nelerdir?
Kapaklı giydirme cephe sistemleri, estetik ve işlevsel bir dış cephe çözümü sunmak için bir dizi özelleşmiş elemanın bir araya gelmesiyle oluşturulur. Bu sistemlerin temel elemanları, yapıyı hem görsel hem de yapısal olarak destekler. İşte kapaklı giydirme cephe sistemlerinin ana elemanları.
Kapaklı Giydirme Cephe Elemanları

Yapının ana taşıyıcı yapısına alüminyum taşıyıcı profillerin güvenli bir şekilde bağlanmasını sağlayan elemanlardır. Bu bağlantılar, sistemin yapıya sağlam bir şekilde sabitlenmesi için kritik öneme sahiptir.

Sistemin ana iskeletini oluşturan ve cam panellerin montajı için gerekli destek ve sabitliği sağlayan profillerdir. Bu profiller, aynı zamanda yapısal bütünlüğü ve dayanıklılığı artırır.

Cephe profillerinin üzerine ve aralarına, camlarla temas edilen bölgelerine çekilir ve sızdırmazlık, yalıtım sağlar.

Cephenin estetik görünümünü sağlayan, doğal ışığın içeri alınmasını ve dış mekan ile iç mekan arasında görsel bir bağlantı kurulmasını sağlayan ana elemanlardır. Çeşitli türlerde ve kaplamalarda camlar kullanılabilir.

Cam panelleri alüminyum taşıyıcı profillere bağlamak için kullanılan, üzerine basınç uygulanan profillerdir. Bu profiller, camın yerinde sabit kalmasını sağlar ve yapısal bütünlüğe katkıda bulunur.

Estetik bir görünüm kazandırmak ve baskı profilleri ile cam panellerin bağlantı noktalarını estetik bir şekilde kapatmak için kullanılan alüminyum profillerdir. Kapak profilleri, cepheye düzgün ve bitmiş bir görünüm verir.

Baskı profilinin altına ve cam panellerin arasına doldurularak hava ve su sızdırmazlığı sağlanır. Silikon, cam paneller arasındaki derzlerin mühürlenmesinde ve ekstra yapıştırıcılık sağlanmasında kullanılır.

Cephede içe veya dışarı açılır şekilde, dışarıdan bakıldığında bütünlüğü bozmayan ve iç mekanı havalandırmaya yarayan açılır kanat entegre edilebilir.
Kapaklı Cephe Teknik Özellikleri
- Profil Genişliği: 50mm
- Profil Et Kalınlığı: 1,4 – 2,5 mm
- Düşey Taşıyıcı Profil Derinliği: 50 – 180 mm
- Yatay Taşıyıcı Profil Derinliği: 30 – 126 mm
- Minimum Cam Kalınlığı: 4 mm
- Maksimum Cam Kalınlığı: 45 mm
- Minimum Kanat Boyutu: 700 x 1200 mm
- Maksimum Kanat Boyutu: 1500 x 2000 mm
- Maksimum Kanat Ağırlığı: 155 kg
- EN 12152 Hava Geçirgenliği: A4 – 600 Pa
- EN 12154 Su Sızdırmazlığı: RE 1200 Pa
- EN 13830 Rüzgar Yüküne Dayanım: 1200 Pa
- Minimum Termal Isı Yalıtımı: Uf: 2,64 W/(m^2.K)
Kapaklı Cephe Cam Özellikleri Nelerdir?
Kapaklı giydirme cephe sistemlerinde kullanılan camlar, yapısal gereksinimler, estetik beklentiler ve fonksiyonel ihtiyaçlar göz önünde bulundurularak farklı ölçülerde tasarlanabilir. İşte kapaklı cephe camlarının tipik ölçüleri hakkında bazı detaylar.
Kapaklı Giydirme Cephe Cam Ölçüleri
| Özellik | Değer |
| Cam Kalınlığı | 4 mm – 45 mm |
| Minimum Kanat Ölçüleri | 700 mm x 1200 mm |
| Maksimum Kanat Ölçüleri | 1500 mm x 2000 mm |
| Maksimum Kanat Ağırlığı | 155 kg |
Kapaklı Cephe Cam Renkleri Nasıldır?
Kapaklı cephe sistemlerinde kullanılan camlar, geniş bir renk yelpazesine sahip olabilir. Camın rengi genellikle, camın içine eklenen metal oksitler veya cam yüzeyine uygulanan kaplamalar aracılığıyla elde edilir. Bu renkler, hem estetik görünümü hem de camın işlevsel özelliklerini etkileyebilir. İşte kapaklı cephe camlarında sıkça tercih edilen renkler.
Kapaklı Giydirme Cephe Cam Renkleri

- Şeffaf / Doğal: En yaygın kullanılan cam türüdür ve maksimum doğal ışık geçirgenliği sağlar.

- Bronz: Güneş ışığının bir kısmını emerek ısı yükünü azaltır ve binalara sıcak bir görünüm kazandırır.

- Gri: Nötr bir renktir ve güneş kontrolü sağlarken ışık geçirgenliğini dengeler.

- Mavi: Gökyüzüyle uyumlu estetik bir görünüm sunar ve güneş ışığını filtreleyerek iç mekanın serin kalmasına yardımcı olur.

- Yeşil: Doğal bir görünüm sunar ve güneş ışığının bir kısmını emerek ısı yükünü azaltır.

- Reflektif / Ayna Etkili: Güneş ışığını ve ısıyı yansıtarak iç mekanın serin kalmasını sağlar. Aynı zamanda, dışarıdan bakıldığında yansıtıcı bir yüzey oluşturarak gizlilik sağlar.

- Opak / Mat: Işık geçirgenliğini korurken, tam veya kısmi gizlilik sağlar.
Bu renk seçenekleri, kapaklı cam cephe sistemlerinde, binalara özgün bir karakter kazandırmak ve belirli bir atmosfer yaratmak için kullanılabilir. Camın rengi, aynı zamanda bina içindeki ısı ve ışık kontrolü üzerinde önemli bir etkiye sahip olabilir. Bu nedenle, cam renginin seçimi, projenin estetik ve işlevsel gereksinimlerine uygun olarak dikkatlice yapılmalıdır.
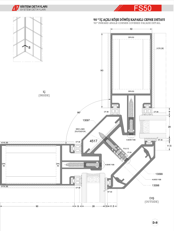
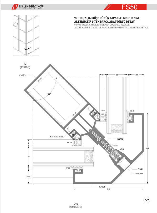
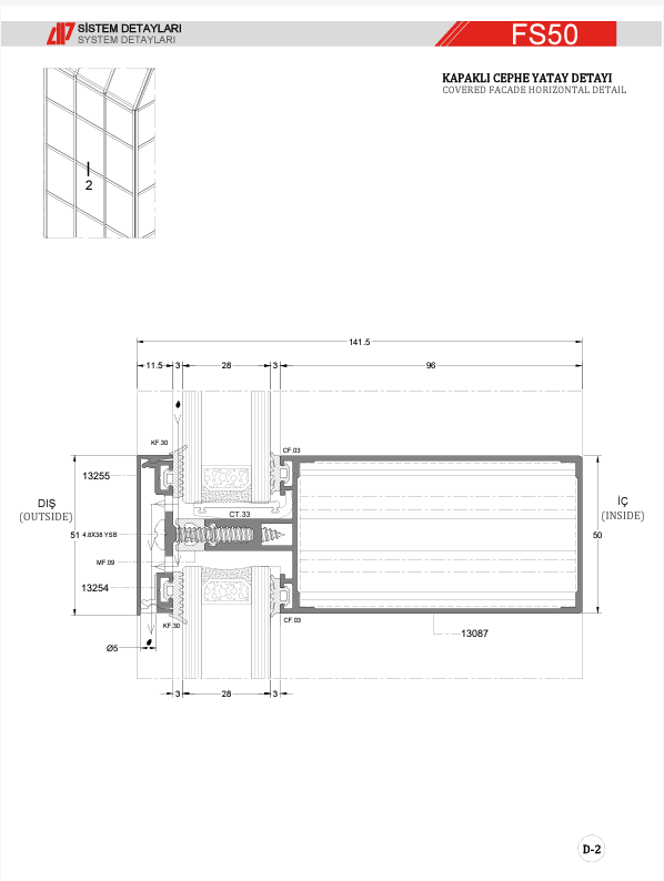
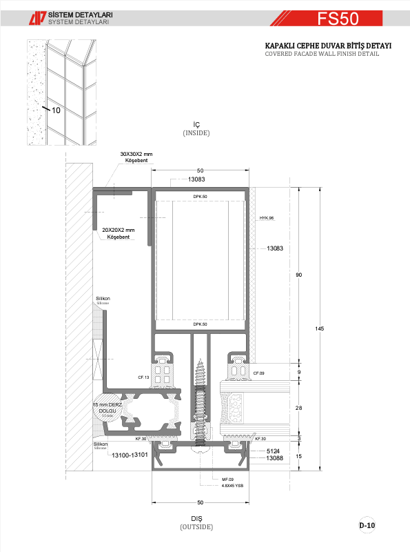
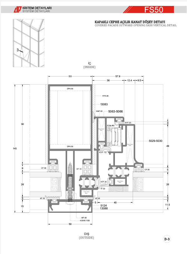
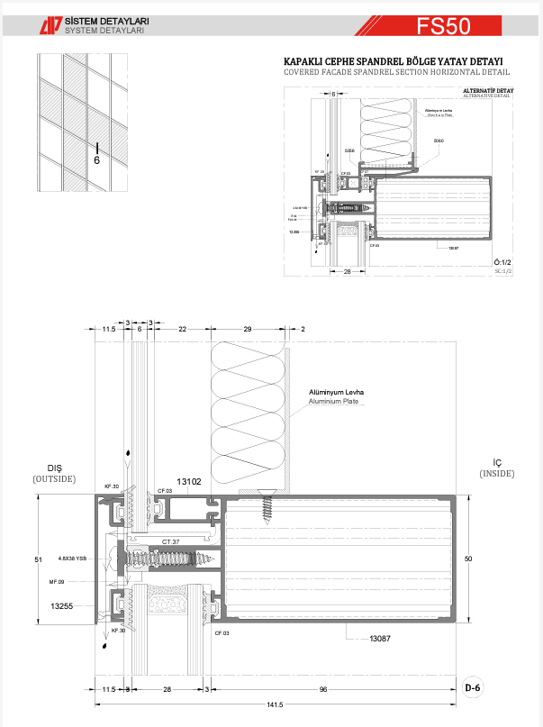
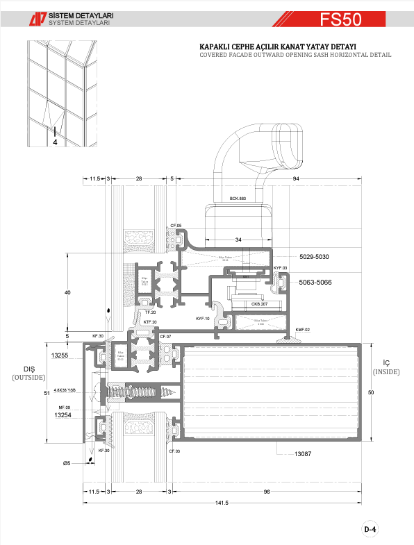
Kapaklı Giydirme Cephe Detayları
Kapaklı Cephe Nasıl Yapılır?
Kapaklı giydirme cephe sistemlerinin imalatı, estetik ve yapısal bütünlüğü sağlamak için titiz bir süreç gerektirir. Bu süreç, tasarım ve mühendislik çalışmalarından başlayıp, malzeme imalatı ve kalite kontrol aşamalarına kadar uzanır. İşte kapaklı giydirme cephe imalatının ana adımları.

- Kapaklı giydirme cephe sistemlerinin imalatı, projenin özgün gereksinimlerine uygun detaylı tasarım ve mühendislik çalışmaları ile başlar. Bu aşamada, cephenin estetik görünümü, yapısal dayanıklılığı ve enerji verimliliği gibi faktörler dikkate alınır. Cephe sistemine ait tüm elemanların (alüminyum taşıyıcı profiller, cam paneller, baskı ve kapak profilleri) boyutları, şekilleri ve malzeme özellikleri belirlenir.


- Cam paneller, belirlenen ölçülere göre kesilir ve gerekli işlemler (temperleme, laminasyon, kaplama vb.) uygulanır. Bu işlemler, camın güvenlik, enerji verimliliği ve estetik özelliklerini artırır. Cam panellerin kenar işlemleri de bu aşamada yapılır, böylece montaj sırasında mükemmel bir uyum sağlanır.

- Baskı profilleri, cam panelleri alüminyum taşıyıcı profillere sabitlemek için kullanılır ve yüksek hassasiyetle imal edilir. Kapak profilleri, cepheye bitmiş bir görünüm kazandırmak amacıyla tasarlanır ve imal edilir. Bu profiller, cam panellerin etrafını estetik bir şekilde çerçevelemek için kullanılır.

- Kapaklı cepheye entegre edilecek açılır kanatların imalatı yapılır. Cephede camların arkasına kaset profili gerekmezken açılır kanat için gerekmektedir.
Kapaklı giydirme cephe sistemlerinin imalatı, yüksek kaliteli malzemelerin kullanımı ve detaylı mühendislik çalışmaları ile karakterize edilir. Bu süreç, cephe sistemlerinin uzun ömürlü, estetik ve işlevsel olmasını sağlamak için kritik öneme sahiptir. Ayrıca montaj aşamalarında sorun yaşanmaması adına imalatta hata minimumda tutulur.
Kapaklı Giydirme Cephe Montajı

- Montaj işlemi, ankraj ve dübeller kullanılarak alüminyum taşıyıcı profillerin binanın ana taşıyıcı yapısına güvenli bir şekilde bağlanmasıyla başlar. Bu, cephenin temelini oluşturur ve yapısal dayanıklılık sağlar.


- Hava ve su sızdırmazlığını sağlamak amacıyla, alüminyum profillerin üzerine ve aralarına özel fitil ve contalar yerleştirilir. Bu işlem, cephenin izolasyon performansını artırır.


- Cam panellerin yerinde sabitlenmesi ve ek sızdırmazlık için, baskı profilleri monte edilir ve gerekli noktalara silikon dolgu uygulanır.

- Estetik bir bitiş sağlamak için, cam panellerin etrafına, baskı profilleri üzerine kapak profilleri monte edilir. Kapak profilleri, baskı profillerini ve montaj detaylarını estetik bir şekilde gizler.
- Cam panellerin kenarlarına ve kapak profillerinin bağlantı noktalarına ekstra su ve hava sızdırmazlık sağlamak amacıyla silikon uygulanır.
- Montaj işleminin tamamlanmasının ardından, sistem üzerinde kapsamlı bir kalite kontrol işlemi gerçekleştirilir. Bu, montajın doğruluğunu, cephenin sızdırmazlığını ve genel yapısal bütünlüğünü doğrulamak için önemlidir.
Kapaklı giydirme cephe montajı, hem estetik hem de işlevsel açıdan yüksek performanslı bir dış cephe sistemi oluşturmak için titizlik ve uzmanlık gerektiren bir süreçtir. Bu nedenle, montaj sürecinin başarılı olması için deneyimli profesyoneller ve doğru montaj tekniklerinin kullanılması esastır.
Kapaklı Cephe Maliyetleri Nasıldır?
Kapaklı giydirme cephe sistemlerinin maliyeti, bir dizi faktöre bağlı olarak büyük ölçüde değişebilir. Bu faktörler arasında kullanılan malzemelerin türü ve kalitesi, camın özellikleri, cephenin boyutu ve karmaşıklığı, işçilik maliyetleri, projenin bulunduğu coğrafi konum ve ekstra özellikler veya gereksinimler yer alır. İşte kapaklı giydirme cephe maliyetlerini etkileyen bazı ana faktörler ve maliyetler hakkında genel bilgiler.
Kapaklı Giydirme Cephe Maliyetleri
- Malzeme Maliyetleri: Alüminyum taşıyıcı profiller, kapak profilleri ve cam paneller gibi malzemelerin kalitesi ve özellikleri, toplam maliyet üzerinde önemli bir etki yapar. Örneğin, enerji verimliliği yüksek camlar veya özel kaplamalı camlar daha pahalı olabilir.
- Tasarım ve Mühendislik: Cephenin tasarımı ne kadar karmaşık olursa, mühendislik ve tasarım aşamasındaki çalışmalar da o kadar artar, bu da maliyetleri yükseltebilir.
- İşçilik Maliyetleri: Montajın karmaşıklığı ve gerektirdiği uzmanlık düzeyi işçilik maliyetlerini etkiler. Ayrıca, işçilik maliyetleri coğrafi bölgeye göre değişiklik gösterebilir.
- Ekstra Özellikler ve Fonksiyonlar: Açılır kanatlar, özel güneş kontrolü veya otomatik havalandırma sistemleri gibi ek özellikler, projenin maliyetini artırabilir.
- Projenin Konumu: Malzeme tedariki, nakliye ve lojistik maliyetleri, projenin bulunduğu yere bağlı olarak değişebilir. Ayrıca, belirli bir bölgedeki işgücü maliyetleri de maliyeti etkileyebilir.
Kapaklı Giydirme Cephe Fiyatları
Genel olarak, kapaklı giydirme cephe sistemlerinin metrekare başına fiyatı 180-220 dolar arasında değişir. Daha karmaşık ve özel malzeme gerektiren projeler için bu maliyet önemli ölçüde daha yüksek olabilir. Bu nedenle, net bir maliyet tahmini için projenin tüm detaylarıyla birlikte yerel tedarikçilerden veya cephe sistemleri uzmanlarından özel teklifler almak önemlidir.





